vectorial 11

Vivienda unifamiliar aislada en Gilet

La vivienda se sitúa en Gilet, en una parcela ubicada en una urbanización residencial con una pendiente muy pronunciada, que es indiscutiblemente el punto de partida del proyecto.

Es una situación privilegiada, al este el mar Mediterráneo y al suroeste el Parque Natural de la Sierra Calderona.

Debido a la pendiente tan pronunciada y a los condicionantes de la normativa en cuanto al número de plantas y altura de cornisa, la plataforma de acceso a la vivienda se baja lo máximo que permite poder acceder con vehículo y se decide compactar la vivienda para liberar el máximo espacio de la parcela. Con el objetivo de adaptarse mejor a la pendiente se quiebran creando diferentes plataformas, tanto las terrazas como la piscina.

La casa se despliega como un gran mirador, se cierra a la calle de acceso y a las viviendas colindantes y se abre hacia la pendiente y las vistas al mar.

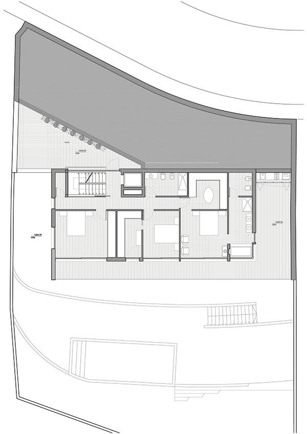
La vivienda se desarrolla en dos plantas. En planta baja se ubican las estancias de día todas volcadas a las vistas. Se protege del soleamiento con un voladizo que lo provoca la caja de primera planta, que descansa sobre ésta. En la planta primera se ubican los dormitorios.

Un gran patio en la parte posterior, que surge al adaptarse a la topografía del terreno, ilumina el núcleo vertical de comunicación.

Logos de las entidades cuyo proyecto es financiado por la Unión Europea – NextGenerationEU

«Financiado por la Unión Europea – NextGenerationEU. Sin embargo, los puntos de vista y las opiniones expresadas son únicamente los del autor o autores y no reflejan necesariamente los de la Unión Europea o la Comisión Europea. Ni la Unión Europea ni la Comisión Europea pueden ser consideradas responsables de las mismas»